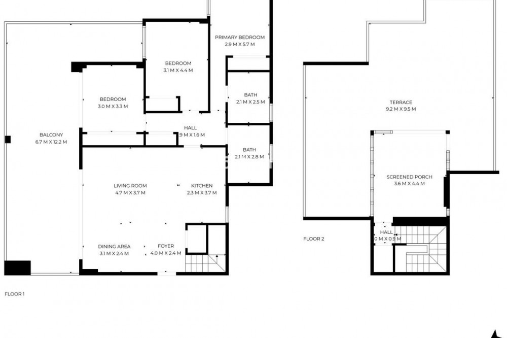
- Discover the perfect blend of modern elegance and coastal living in this spectacular 3-bedroom, 2-bathroom penthouse situated in the prestigious Las Mesas area of Estepona. Ideally located within walking distance of Estepona Marina, the charming Old Town, and the picturesque beach promenade, this residence offers an unbeatable lifestyle by the sea. Featuring 146m² of beautifully designed interior space and 150m² of sun-drenched terraces, this home is built for those who value light, space, and style. The open-plan kitchen and living area flow seamlessly onto a 57m² main terrace that connects directly with the living room and bedrooms — all enjoying stunning panoramic views over the Mediterranean and the city of Estepona. The highlight of this exceptional property is the 93m² private solarium, complete with a pergola, outdoor kitchen, and chill-out area — the ideal setting to relax, entertain, and take in the incredible sea views. This penthouse also includes two private parking spaces and a very spacious storage room, providing comfort and convenience. The exclusive Las Mesas community offers outstanding facilities, including: Adults’ and children’s swimming pools Fully equipped gym Sauna and jacuzzi Co-working area Additionally, short-term rentals are permitted, making this an excellent investment opportunity as well as a luxurious private residence. Every detail of this home has been designed to deliver an exceptional living experience — combining sophistication, sea views, and proximity to everything Estepona has to offer.
-
Setting: town, beachside, port, village, close to port, close to shops, close to sea, close to town, close to schools, marina, close to marina, urbanisation
-
Orientation: south east, south, south west, west
-
Condition: excellent
-
Pool: communal
-
Climate control: air conditioning, u/f/h bathrooms
-
Views: sea, mountain, port, country, panoramic
-
Features: covered terrace, lift, fitted wardrobes, near transport, solarium, gym, sauna, storage room, jacuzzi, barbeque, double glazing
-
Kitchen: fully fitted
-
Garden: communal
-
Security: gated complex, electric blinds, entry phone, alarm system
-
Parking: underground, garage, communal, private
-
Utilities: drinkable water


















































