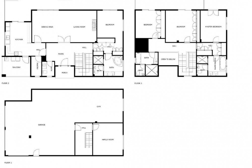
- We are thrilled to present our exclusive listing; an unparalleled opportunity to own an exquisite and modern villa located in the highly sought-after area of San Pedro de Alcantara. Renovated and in impeccable condition, this property epitomizes luxurious living in a tranquil and secure neighborhood. As you step into the villa you are immediately welcomed by a stunning double-height entrance hall, setting the tone for elegance and grandeur. The spacious living room and dining area bathe in natural light, courtesy of expansive glass doors that open to a generous covered terrace, perfect for al fresco dining and entertaining. This exceptional villa features four well-appointed bedrooms and three stylish bathrooms, including two en-suite options, ensuring comfort for families or guests alike. The bathrooms boast high-quality fixtures that exude sophistication, complemented by a convenient guest toilet. Entertainment abounds in this property, with dedicated spaces including a cinema room, playroom, and bar, all designed for memorable gatherings. For the fitness enthusiast, a fully equipped gymnasium awaits, while the spacious garage accommodates two cars with additional driveway space for three more. For those who needs more space, there is a posssibility to extend and have even more space. Set on a substantial 737m² plot, the beautifully landscaped garden, adorned with fruit trees, is a private oasis. The heated pool invites relaxation, while the upper-level terrace offers captivating views over the gardens and shimmering sea, creating the perfect backdrop for breathtaking sunsets. In addition, if you need more space, there is a possibility to built some more rooms easily. Location is paramount, and this villa excels with its proximity to the city center, beach, diverse restaurants, shops, playgrounds, and schools—all within walking distance. Renowned for its peaceful atmosphere, this area is undoubtedly ideal for those seeking a harmonious lifestyle. Seize this opportunity to own a luxurious villa that redefines elegance and comfort. Whether as a family residence or a vacation retreat, this property is an exceptional find. Don’t miss out—schedule your viewing today!
- 
                                    
                                    Setting: close to golf, close to port, close to shops, close to town, close to schools
- 
                                    
                                    Orientation: south, south west
- 
                                    
                                    Condition: excellent
- 
                                    
                                    Pool: private
- 
                                    
                                    Climate control: air conditioning, fireplace
- 
                                    
                                    Views: sea, garden
- 
                                    
                                    Features: covered terrace, fitted wardrobes, near transport, private terrace, gym, storage room, ensuite bathroom, jacuzzi, bar, double glazing, basement
- 
                                    
                                    Kitchen: fully fitted
- 
                                    
                                    Garden: private
- 
                                    
                                    Security: electric blinds, alarm system
- 
                                    
                                    Parking: underground, garage, more than one, private
- 
                                    
                                    Utilities: solar water heating

 
                                 
                                 
                                 
                                 
                                 
                                 
                                 
                                 
                                 
                                 
                                 
                                 
                                 
                                 
                                 
                                 
                                 
                                 
                                 
                                 
                                 
                                 
                                 
                                 
                                 
                                 
                                 
                                 
                                 
                                 
                                 
                                 
                                 
                                 
                                 
                                 
                                 
                                 
                                 
                                 
                                 
                                 
                                 
                                 
                                












































