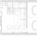
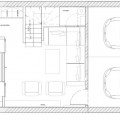
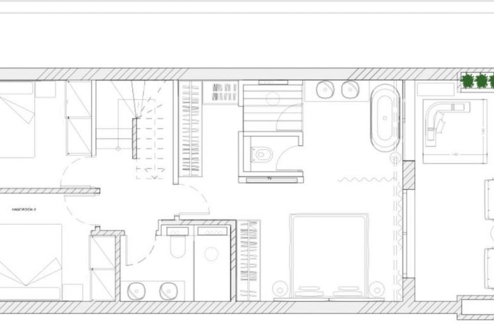
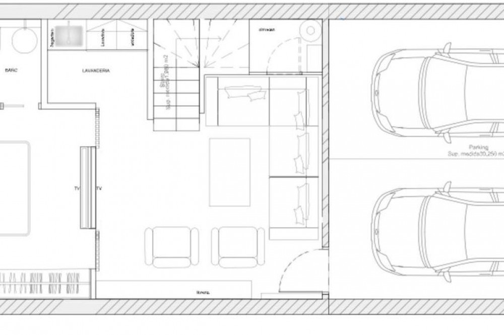
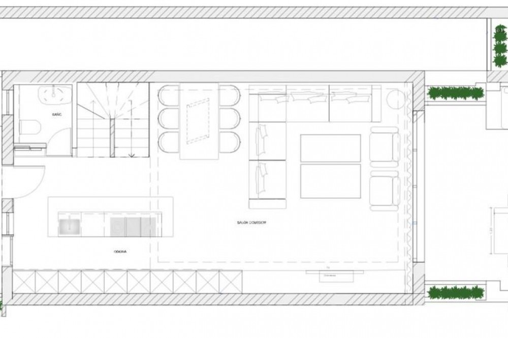
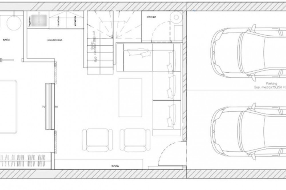
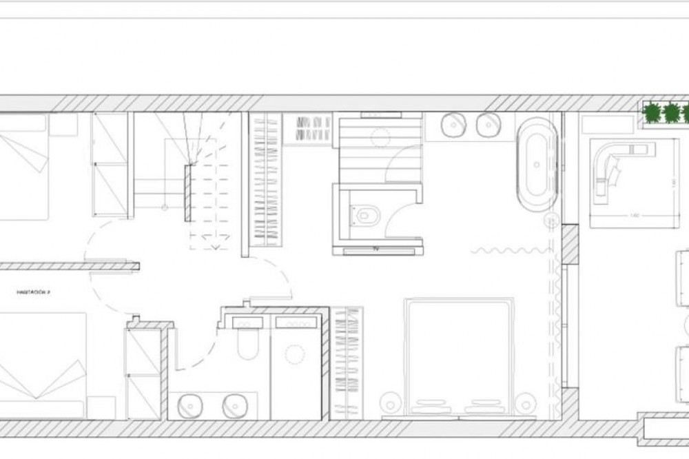
- Exclusive townhouse in the Golden Mile, located in the prestigious Monte Marbella Club, in Lomas de Puente Romano. Fully renovated with high-quality materials and elegant design, this property features 4 spacious bedrooms, 3 bathrooms, and a guest toilet. Large windows provide abundant natural light, a 70 m² terrace offers outdoor space, and the home is set in a peaceful environment just minutes from all amenities. Built in 2005 and renovated on 2025 it boasts 283 m² of living space and private parking for two cars. Secure gated community. Community fee: €450/month.
-
Setting: town, beachside, close to shops, close to sea, close to town, close to schools, urbanisation
-
Orientation: east, west
-
Condition: excellent
-
Pool: communal
-
Climate control: air conditioning
-
Views: mountain, garden, urban
-
Features: covered terrace, fitted wardrobes, near transport, private terrace, solarium, wifi, double glazing, fiber optic
-
Furniture: fully furnished
-
Kitchen: fully fitted
-
Garden: private
-
Security: gated complex, 24 hour security
-
Parking: underground
-
Utilities: electricity, drinkable water
-
Category: bargain, investment, luxury





























































