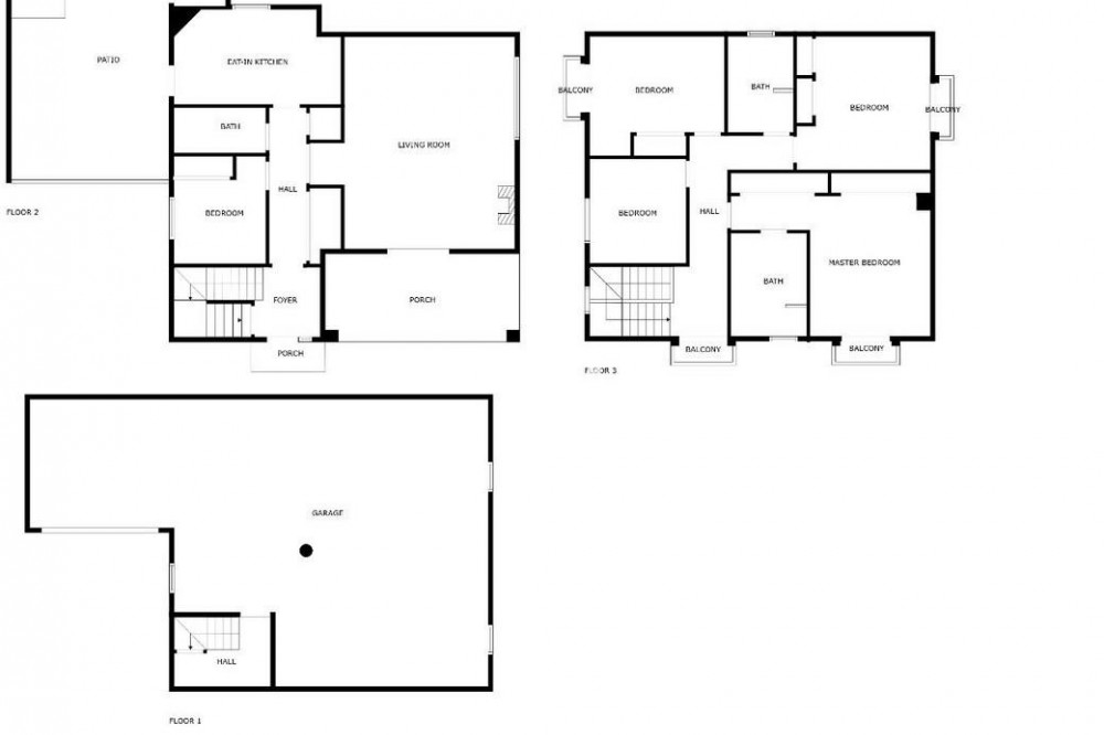
- We present this detached single-family house with 316 m2 built on a plot of 350 m2. Ground floor has 1 bedroom, bathroom, fully equipped kitchen in wood and marble, large living room with fireplace and two rooms, with access to porch and front garden. Upstairs there are 4 bedrooms and two bathrooms. The spacious master bedroom with en suite bathroom and two built-in wardrobes with solid wood doors. Finally, in the basement there is a garage and 150 m2 of open space with the possibility of equipping it with a gymnasium, recreation room, cinema etc. or even the option of making a flat with independent entrance from the street. It is worth mentioning its exterior area with garden with the possibility of building a swimming pool and a luminous barbecue area fully equipped. Close to shops and just a few minutes from golf courses and San Pedro de Alcántara. I will be delighted to attend you in the visit that we will do, Jose Gaitan StrandProperties.
-
Setting: close to golf, close to shops, close to town, close to schools
-
Views: panoramic, urban
-
Features: near transport, private terrace, solarium































