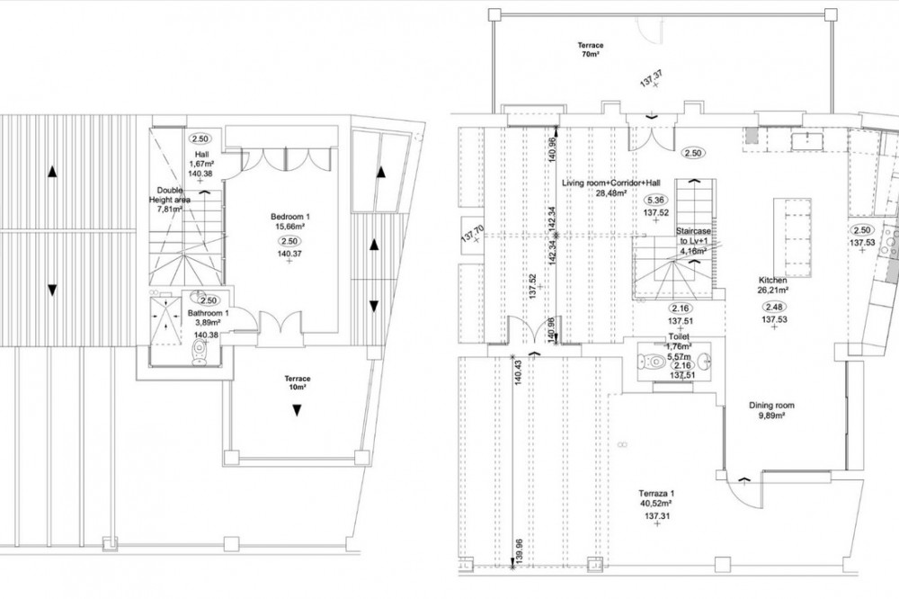
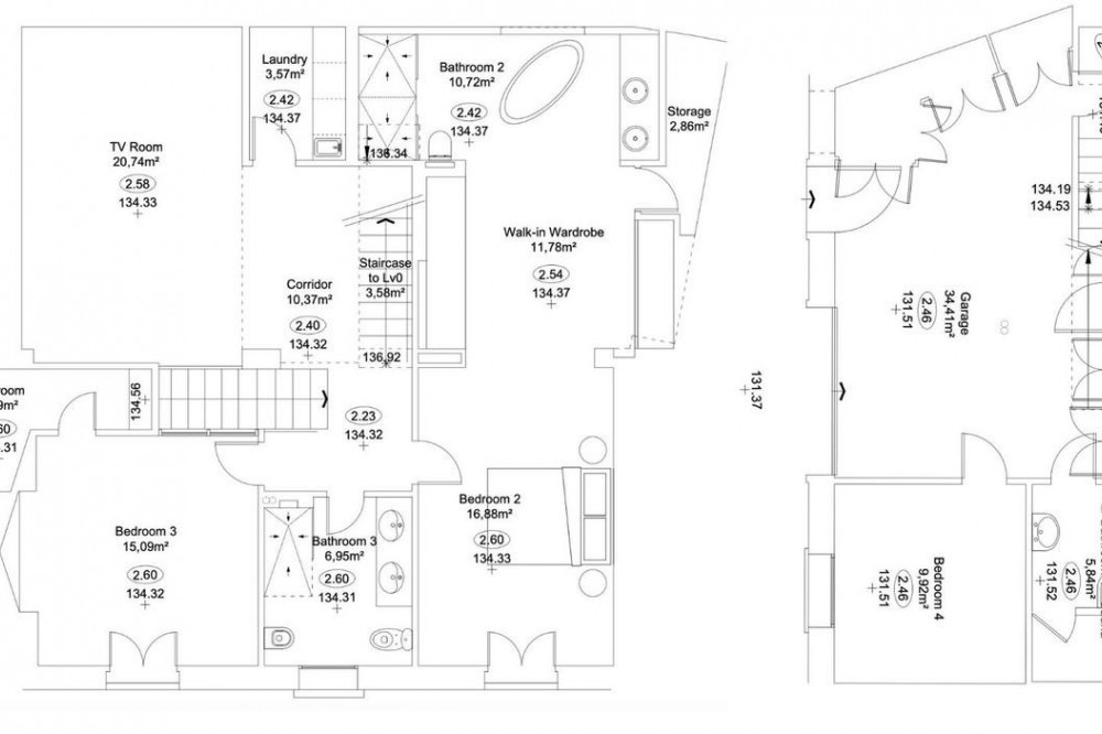
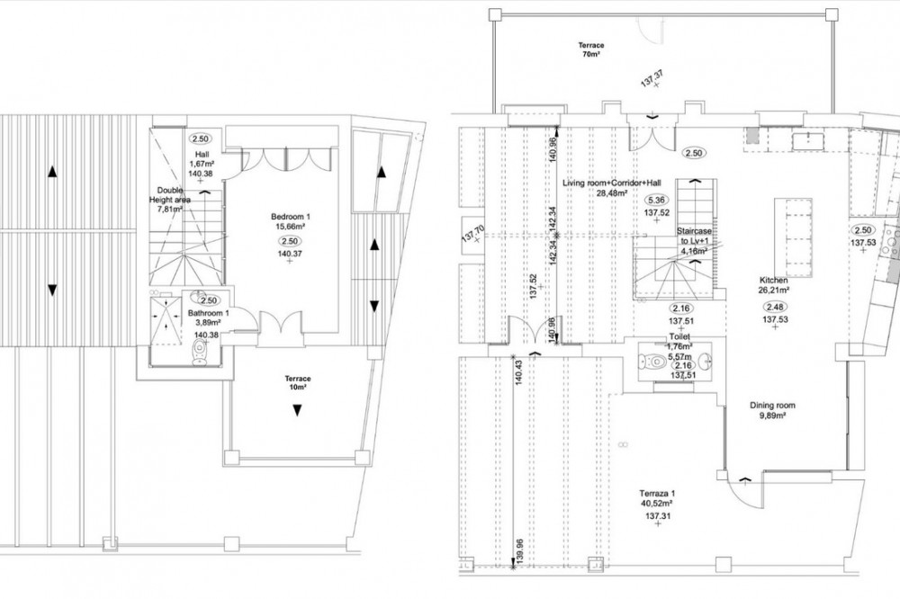
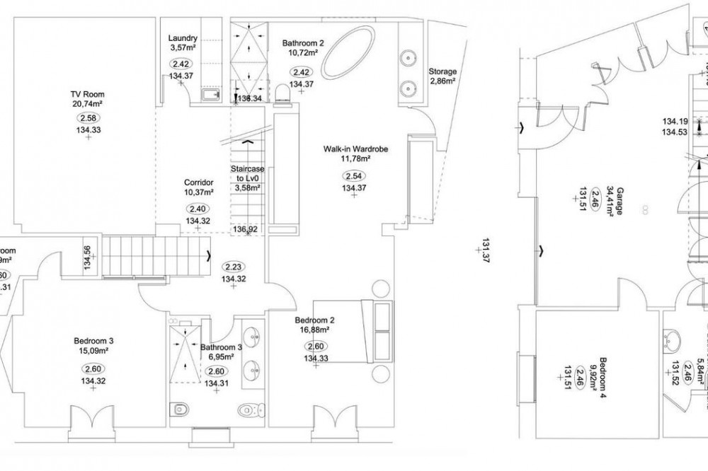
- A Seamless Blend of Andalusian Heritage and Nordic Sophistication on the Golden Mile Nestled in the prestigious residential area of Marbella's Golden Mile, this beautifully newly renovated Andalusian-style townhouse seamlessly blends traditional architecture with contemporary Nordic interiors, offering a unique combination of charm, comfort and functionality. The property welcomes you through a cozy porch entrance, leading into a warm and inviting living room with a fireplace, a guest toilet and a modern open-plan kitchen with a spacious dining area. The entire main floor opens out to an expansive south-facing terrace featuring a dining area, built-in BBQ and views of the Mediterranean Sea—perfect for year-round entertaining. Upstairs, you'll find a bright bedroom with a private terrace boasting panoramic sea views, along with a full en-suite bathroom. On the lower level, a secondary living room with fireplace and TV area offers a cozy retreat, alongside a laundry room, a generous master bedroom with en-suite bathroom and dressing room, a children's bedroom and an additional bathroom. The basement level adds further value with a guest bedroom, a chill-out lounge, a bathroom and a private sauna, making it ideal for hosting guests or creating a wellness sanctuary. This area can easily be converted into a private garage. Located within a secure gated community, residents enjoy access to fantastic amenities including tennis and padel courts, as well as a swimming pool—perfect for relaxing or staying active. This tastefully styled home offers plenty of space across multiple levels, ideal for families or those seeking a home with character, comfort and versatility—just minutes from Marbella's beaches, international schools and all the amenities of the Golden Mile. To ensure high energy efficiency this house is using solar panels and has two electrical charger for EV-cars. Underfloor heating is installed throughout the house for extra comfort. This charming townhouse is perfectly located just a few min from the well renowned Swans school and 7 min from the famous Puente Romano beach resort with top quality restaurants and amenities. Come visit this house today and LET US MOVE YOU!
-
Setting: close to town, close to schools
-
Orientation: south
-
Condition: excellent
-
Pool: communal
-
Climate control: air conditioning, central heating, fireplace, u/f heating, u/f/h bathrooms
-
Views: sea, mountain, pool
-
Features: fitted wardrobes, private terrace, sauna, barbeque, basement
-
Furniture: fully furnished
-
Garden: communal
-
Parking: communal
-
Category: luxury














































